- 详细介绍
早前看过一本书就叫做《理想的工作间》,是实地探访韩国32间小而美的创意工作室。这些工作室装修的主题大相径庭,但都有一个共同点,那就是低成本、小而美,充满了个性化设计,让人为之心动。
屋主介绍
@Jinny就拥有这么一间人人向往的工作室,一个非常舒适,呆着就不想离开的空间。各地淘来的中古家具、精美的小陶艺、趣味单车墙......无不透露着这个工作室鲜活的创意性。作为美女家具设计师的她,和三个从世界志同道合的小伙伴一起在这里设计和简要的日常生活,是同事,也是朋友。
屋主家基本资料
上海宝山区/复古风/电梯楼/室内95㎡/三室2厅/4人/装修花费18W
1.所需功能:
①希望房屋通风好、采光佳,有更多的互动空间。
②想要有更多的储物设计,要求动线合理。
2.生活方式:比较喜欢自然简单的生活理念,保持轻松的工作状态,闲暇时与伙伴们一起品咖啡、闲聊,一起分享工作中的想法与生活中的趣事。
3.设计需求:想要简约复古的风格,低调却显高级。
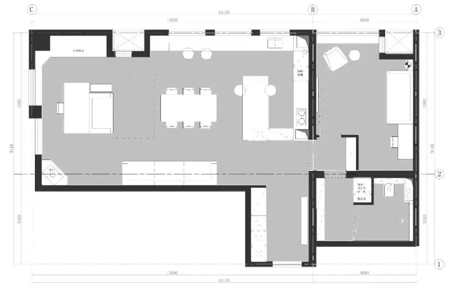
户型图
这是一个由住宅改造而来,「去办公化」的工作室,布置得像家一样,可以消除一些端正紧张的情绪和两点一线的边界。
改造亮点:
1、拆掉原本复杂的隔断墙,让几个小空间融合成一个通透的大空间。
2、原本的吊顶也索性拆掉,还原3.5米的原始层高,空间一下子变得开阔不少。
色彩搭配
在色彩的搭配上,遵循“低饱和度的颜色用在墙,高饱和度的颜色用在软装配饰”的法则,每一个细节都诠释了复古风独有的怀旧感与精致感。
玄关
规划:第一次走进来就被这简约却不简单的装修风格给吸引了,进门就是一扇窗户能够清晰的看到对面马路,简单的绿植点缀,看得出主人公对生活的热爱。
左侧玄关鞋柜,右侧原木斗柜配上禅意佛像摆件,复古文艺范马上就出现了。
客厅

温暖的光线可以让人心情舒畅,良好的心态才能更好的进入工作姿态,因此办公室设计时,特别留意采光率的问题。
设计亮点:百叶窗可以同时满足遮光,半遮光,采光通风的需求,让室内与室外有自然光影的视觉互动。
搭配:光影结合与室内氛围严丝合缝,搭配触感舒适的家居质感,营造出一种轻松自在的氛围,与同事好友围坐,留住记忆的温情。

工作室陈列着从世界各地淘来的中古家具、艺术品等,在@Jinny看来,它们赋予了这个空间充满张力的故事性与艺术感。这些精美的藏品不仅用作收藏展示,也会被转让给喜爱它们的业主。

搭配:自流平地面+极简大白墙+无主灯,摒弃过多装饰,遵循“去繁求简”的智慧,干净纯粹中透着高级感。
餐厅
动线:客餐厨连通一体,开放式的LDK布局,整个公区仿佛大了一倍,互动性很好。

工作室的每个角落都充满着具有烟火气的生活痕迹。原木的长方形餐桌,极简餐椅,桌子上的陶罐台灯及边墙的绿植点缀,都凸显了自然的气息,打破了传统工作室的单调乏味。
厨房
收纳:工作室边墙是宽大的窗户,通风采光效果简直太棒了。靠窗的位置打造成简单的收纳吧台,下方柜体可收纳各式档案资料。

生活方式:吧台就像咖啡厅一样,可以在这看书,亦或欣赏窗外美景,喝茶晒太阳,都是极其惬意的。

这是一个生活气息十足的茶水区,开放式厨房空间宽敞明亮,角落里还有小伙伴自制的梅子露,天气不冷的时候,来访的客人都可以喝到清爽的梅子气泡水。
休息室
金棕色的意式极简沙发时尚大气,凸显质感,沙发表面是全牛皮的材质,亲肤透气,坐感舒适。
规划:沙发边上是一个小小办公桌,一盏瓢虫造型的创意台灯,采用LED光源,光效温馨柔和,有助于提升艺术创作力,激发创作灵感。

生活方式:飘窗前的休闲区是@Jinny的最爱,每当劳累时,她会坐在这张实木靠背椅上闭目休憩,感受温暖的阳光沐浴,得到身心上的放空与自由,就这样静静坐着,也是一种满足与幸福。
卫生间
动线:洗手台外置能保证有效的干湿分离,客人进门就能洗手,方便简单,动线更为流畅。
淋浴区打造壁龛收纳格,内装灯带装饰,简单大方。合理的布局抵消了空间局促感,悬空式马桶更节省空间。
