93㎡二居室老房改造,<4㎡也能卫浴三分离,妈妈直呼太好用了!
来源:南昌爱空间整装公司 日期:2022-11-28 16:45:12
- 详细介绍
老房的卫浴间往往无窗,昏暗狭小容易发霉,火爆全网的卫浴三分离,可以独立分隔马桶区、淋浴区、洗漱区,有效干湿分离让空间更能长久保持干净整洁,那么小于4㎡能做到卫浴三分离吗?一起看看这套是如何实现的吧〜
广州·新港东路房屋面积:93.49㎡
房屋户型:2室1厅
常住人口:4人
装修风格:简约
装修费用:13.8万
设计重点:1、正南处的阳台已经足够满足家庭的晾晒需求,所以厨房处的阳台区域进行拆除,划归成为厨房的一部分,让做饭的操作空间更大;
2、洗漱台外移,扩展了卫浴间的面积。三分离式,不仅保持干湿分离,让空间持久的洁净,而且将洗漱台、马桶区、淋浴区分隔开来,方便三代人更高效地使用。
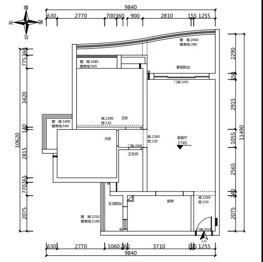
▲原始结构图
▲平面布置图
设计亮点
玄关
“进门看到厅-用屏风”
进门就能一眼望到客厅,总会让人觉得隐私性没有了保障。在玄关与客厅之间,竖起一道带有中国韵味的屏风,既可以化解门与厅之间无遮挡的尴尬,同时也让家的第一眼就显得很有品味。
厨房
“收纳为主,实用为上”
厨房要收纳的锅碗瓢盆、小电器、调味料等等非常多,除了可以通过“挂起来”的方式减轻台面的储物压力,同时通过精细化的分类收纳设计和行为动线设计,让做饭这件事变得更轻松、更简单、更舒适。
原本的阳台被拆除,扩大了厨房的面积,能容纳更多的人同时在这里。橱柜操作台也延伸出来一部分,操作时感觉更加宽敞舒适。
客厅
“硬装简美,软装吸睛”
简洁干练的硬装设计,给人舒展大气的感觉,通过不同软装的搭配,可以随时随地的让居住空间产生一些变化,给人带来不同的居住感受,让家不会太过单调与无聊。
奶茶色系的沙发搭配带有做旧木色的茶几和边柜,再加上轻奢时尚风格的吊灯和单人沙发,用绿植进行自然的调和,一切显得温软舒适。和家人一起窝在这里享受生活,真是最美好的家居时光了。
餐厅
“温暖纯粹很走心”
想要拥有一个整齐干净的家,收纳做得好是前提条件。餐边柜+酒柜的组合,杂乱的东西可以放在柜子里,而且还有展示的位置。坐在餐椅上,举手就可以够到的地方做成了开放式的,拿取物品非常方便。
餐厅通常会选择色温在2700K-3500K的光源,给人温暖、健康、舒适的感觉。选用深色的餐桌餐椅,增添质感。卫浴间的仓谷门成为这个区域的视觉亮点,让空间显得更丰富有趣。
卫浴间
“三分离式,使用更方便”
洗漱台外移,既扩展了卫浴间的面积,也让洗漱区、淋浴区、马桶区使用互不打扰,很好地进行了干湿分离,可以较长久的保持这里的整洁。饭前在这里洗个手也非常方便,而且将马桶区、淋浴区与餐厅很好地隔离开来。
选择使用智能马桶,记得在水电改造时,在马桶的位置附近安排一个插座。巴掌大的小洗手池,在日本的卫生间几乎家家都有,省水也省空间,实用性很强~
主卧
“马卡龙色系,甜蜜温暖”
主卧是妈妈和女儿一起居住,既有妈妈的梳妆台,也有女儿的学习桌,再来两张床,和睦融洽,但也尊重彼此的独立生活。床头背景墙是马卡龙色系中的粉色+蓝色的组合,清新浪漫很治愈。
嵌入式的衣柜,让空间的整体性很强,没有被平白浪费的地方,而且在简约之中,透露出业主对精致生活的不懈追求。
老人房
“存放一些老物件”
这是孩子外婆常住的空间,里面会有缝纫机、布筐等物品,老人打发时间的时候,可以做一些布艺品,包含着满满的爱意。同时在做手工的过程中,也能想起曾经的那些美好记忆。
