LDK还不够,书房也来凑一凑,简洁温馨太实用,快种草!
来源:爱空间科技(北京)有限公司 日期:2022-10-26 13:54:04
- 详细介绍
房子交付的大半年前,业主群的人都着手准备,作为装修小白的我自然不敢松懈,幸运的是通过朋友介绍遇到了心仪的设计师,他的设计理念也是我所认可的,每次沟通过程似乎都有聊不完的内容,家人也都对这次装修充满了期待。
最终呈现的效果没有让我们失望,全屋设计精致耐看,没有多余的造型和装饰,整个家具布置以简单实用性放在第一位,呈现出极简北欧的气质;LDK加上书房的创新组合,既简洁温馨又实用;设计师还根据我们的生活习惯对家居收纳做了系统的规划,在不同的区域增设储物柜,虽然才入住半年,基本上能用到的柜子都被用上了,给我们的生活提供了很大便利。
言有尽,意无穷,再次感谢专业的设计团队,带来的一次美好的装修体验,让我们的梦想成真。
房屋信息:
面积:120㎡
户型:三室两厅两卫
风格:北欧
常住人口:3人
装修成本:20万
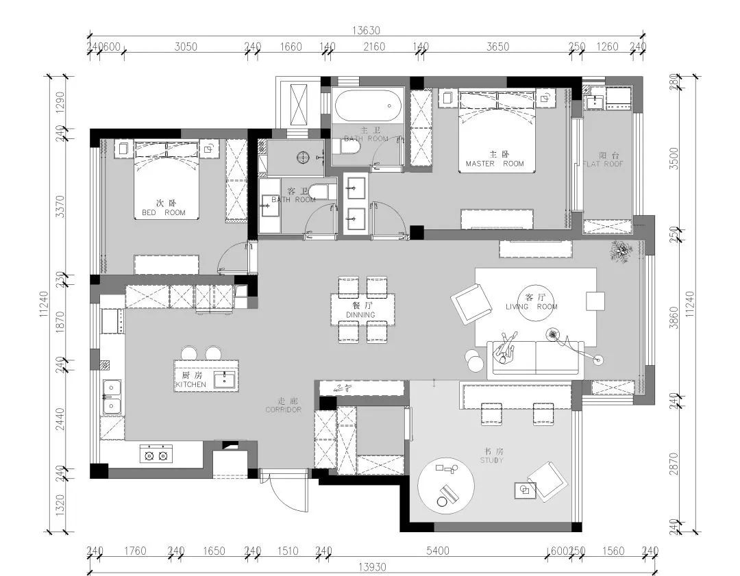
户型图
这是原始户型图,套内面积120平的房子,隔断墙太多,入户光线不是很充足,动静分区不明确。加上原厨房的阳台功能性不强,厨房区域布局上受到限制,卫生间面积小,没有储物空间,主卧需要进一步的调整。
调整策略如下:
1、将客厅与书房之间的墙体拆除,改成半墙隔断,让空间更宽敞通透;
2、厨房与杂物间打通,扩大使用面积,改造成开放式设计,增加采光;
3、厨房设计岛台,预留了位置可以放冰箱、烤箱等;
4、原本连通的大阳台封闭起来,让卧室与客厅彼此独立,更具私密性。
玄关
在繁华喧嚣的都市,拥有一处静谧悠然的栖身之所,让漂泊的心灵在打开家门的那一刹那,闲适安然,这就是家的意义所在。
进门左侧是厨房,右侧是餐厅,地板是瓷砖与原木不同的材质形成区域自然分隔,简洁利落,和全屋极简的布置相得益彰。
客厅
由于层高受限,客厅采用无主灯设计,轻松提升整体的宽敞度,更加通透和亮堂,安装射灯辅助照明营造氛围,同时也起到不错的装饰作用。
与灰色背景墙、简易布艺沙发及茶几搭配在一起,温馨舒适又不乏个性潮流。

电视墙安装定制的原木柜体,打造收纳式背景墙,增加客厅的储物空间,立体感强,美观又大气。

灰色沙发优雅轻奢,好看与好坐的平衡赋予了家庭的温度,也提升客厅档次。
阳台包进客厅,增加室内采光,视野也变得开阔起来。整面墙的落地窗搭配百叶窗帘,最大化地保留通透感。
窗前摆放一张舒适的懒人躺椅,闲暇时静坐于此,足不出户,就能享受到阳光的温暖与明媚,生活无比惬意。
餐厅
客餐厨一体化的设计,让家居动线更加流畅利索,家人之间有更多的交流互动,提高空间利用率。
餐厅布置十分简单,长方形的原木餐桌搭配藤编餐椅,再加上一盏灯光柔和的吊灯,轻松营造出温馨的用餐环境,一家人围坐在桌子旁,平淡的烟火气里充满幸福滋味。
餐边柜是地柜+置物架的组合形式,既可以收纳杯子等物品,又可以摆放艺术品,一举多得。
厨房
厨房是开放式的设计,冰箱、水槽、灶台、餐桌形成合理的动线,解决餐厅功能的同时,扩大了公共区域的面积。
一体化的设计,使得各区域的连接性增强,一步一景,你中有我,我中有你。
整齐的橱柜收纳力强,锅碗瓢盆等都归置其中,保持厨房环境的干净清爽。
厨房中间增设同色系的吧台,平时既可以用来放置水果又可以坐在这里休息放松。
主卧
主卧没有多余的装饰,简单的大白墙+原木半墙,达到视觉上的平衡,同时也营造出静谧、悠闲的气息。侧面的飘窗,通过白色纱帘进行隔断,延伸出一块休闲区。
北欧双层床头柜选用皮艺材质,外观简洁大方,可收纳书籍、手机等小物品,拿取方便,实用性强。
主卧最大的亮点,是卫生间洗手台外置,随时洗手、洗漱都很方便。原木浴室柜优雅有质感,悬空设计可减少卫生间死角,清洁打理更为便捷。
次卧
女儿的房间布置的简约温馨,软包床头搭配洁净素雅的床品,同时拥有良好的采光,希望她的小世界一直被阳光和幸福笼罩。
床头背景墙涂上一层奶茶色的乳胶漆,甜而不腻,色彩鲜艳的床头柜为卧室注入更多的活力,地面整铺温润质朴的木地板,整体氛围舒缓放松,居住感也是非常不错的。
书房
书房与客厅之间仅有半墙隔断,既在视觉上让公共领域更加开阔,又可以增加区域间的互动性,同时实现明确分区。
在隔断墙内安装简易书桌,满足工作学习的需求,还能增加收纳,一举两得。
书房里摆放客厅同款网红毛毛虫单人小沙发,柔软舒适,造型新潮个性。旁边摆放一盏落地灯,极简轻奢,满满的北欧风。
落地式靠墙书架可多格储物,整齐收纳书籍。偶尔在周末的午后,坐在书房里,看喜欢的书籍,享受属于自己的自由时光。
公卫
公卫用浅灰色木材铺设,悬空式马桶节省空间,淋浴区做了通顶的金属玻璃隔断,洗浴时隔绝水汽,保证室内干爽。
