广州94㎡,主卧向儿童房“借”5㎡,完工多个衣帽间!
来源:爱空间科技(北京)有限公司 日期:2022-11-22 15:42:36
- 详细介绍
这是一个为三口之家量身打造的幸福之居。屋主陈先生和妻子都是91年的,从校园恋爱到步入婚姻,一切都是那么的美好。
如今的他们也正式步入而立之年,开始经营自己的小家了。随着为人父母的身份转换,理应有一份责任与担当,为了给孩子更好的未来,陈先生在广州白云区买了一个学区房。
94㎡的小户型采用的是比较素雅的现代北欧风格,虽然看似简简单单,但是却极具北欧的淡雅美学,充满原木色的自然气息,给人一种小清新的格调。
房屋信息:
面积:94㎡
风格:北欧风
户型:两室两厅一卫
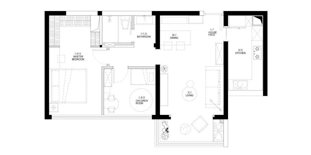
装修成本:16万平面图
这是新房的平面设计图,整体户型是比较方正的,南北通透,所以采光和通风的效果都比较好。
在房间的设计上,设计师增加了许多有趣的细节,例如卧室的衣帽间处理,还有包进客厅的阳台等等。
客厅
客厅的整体设计是非常清新雅致的,地面采用温润的原木地板,北欧风格的金属灯饰让空间增添了温馨感。阳光透过窗台照射到客厅里,柔和舒适,让人内心感到宁静。
宽大的阳台空间摆放洗衣机,改造成集洗衣房和休闲房于一体的多功能空间。将阳台与客厅的隔断墙拆除,让整体家居更显宽敞明亮。
深蓝色乳胶漆搭配浅灰色电视柜,色调上的搭配融合,让整个空间看起来更有层次,加上绿植的点缀更有活力了。
灰色的布艺沙发简约大气,大白背景墙恰到好处地加上一副艺术画作装饰,视觉美感油然而生。沙发旁边摆放实用性强的收纳柜,可以缓解客厅的储物压力。
餐厅
餐厅位于玄关进门处,为了节省空间,特意将餐厅打造成卡座设计,方便且实用。
北欧实木餐桌椅组合,搭配ins马卡龙创意吊灯,简约的设计理念让小餐厅也能拥有大格调。一家人坐在一起用餐,更显温馨与幸福。
厨房
厨房采用北欧最经典的原木色橱柜,搭配白色方块瓷砖,锅碗瓢盘都整齐归纳好,使厨房环境干净清爽,一目了然。
宽大的窗户为厨房带来更好的采光和通风效果,让下厨也能成为一件舒适自在的事情。
主卧
简洁的卧室空间,布置上舒适的大床,床边是一个精致的梳妆桌,搭配可爱的绵羊造型矮凳,营造出一种轻松有趣的网红气质。
粉色的床单与窗帘,还有墙上的画框色调相呼应,显得那么精致和优雅。
清晨醒来,阳光温柔地洒在大床上,让人倍感慵懒舒适。
卧室的另一边定制了一个独立衣帽间,满足衣服包包等物品的收纳。
衣帽间
顶天立地的衣柜能充分利用空间的每1㎡,而且还能带来视觉上的美感,让收纳装饰两不误。
可以把一些不经常使用的物品,放在柜子的最顶端,衣物都整齐归纳好,让卧室看起来干净整洁,又好打理,满满的高级感。
儿童房
儿童房的设计十分温馨活泼,除了环保舒适的实木地板,还有可爱造型的纱帐和动物图案的床单,打造如童话般的孩童空间。
房间的采光极好,微风习习,窗外景色尽收眼底,家长在这里陪伴孩子玩耍时,心情也会更加愉悦。
墙边置物柜可以将孩子的玩具都收纳起来,不会让房间过于凌乱。
圆形地垫触感柔和,造型也十分可爱。
卫生间
卫生间的洗手台是一体盆设计,易于清洁打理,宽敞的台面增加置物空间,下方柜子也可收纳日常用品。
浴室镜设计很有立体感,后面隐藏灯带更有不一样的装饰效果,趣味性十足。
淋浴房以玻璃门隔断,实现了干湿分离。恒温花洒可大大提高淋浴的安全性和舒适性,给家人更好的呵护。
